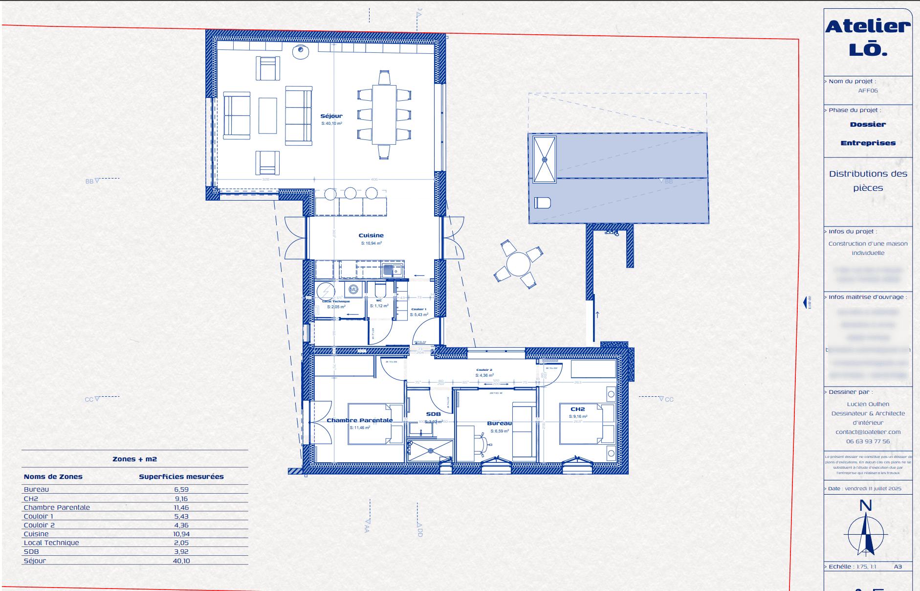
Construction d’une maison individuelle

Par : contact@loatelier.com • 22 septembre 2025

Description

De l’esquisse au chantier, Permis de construire instruit et accepté, chiffrage en cours par les entreprises

Photos / Rendus

Retour en haut