Double Extension d’une maison

Par : contact@loatelier.com • 22 septembre 2025

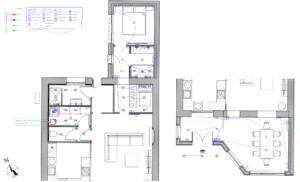
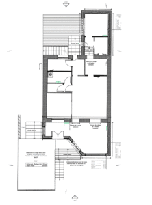
Description

Photos / Rendus

Retour en haut