Rénovation transformation d’un garage

Par : contact@loatelier.com • 22 septembre 2025

Description

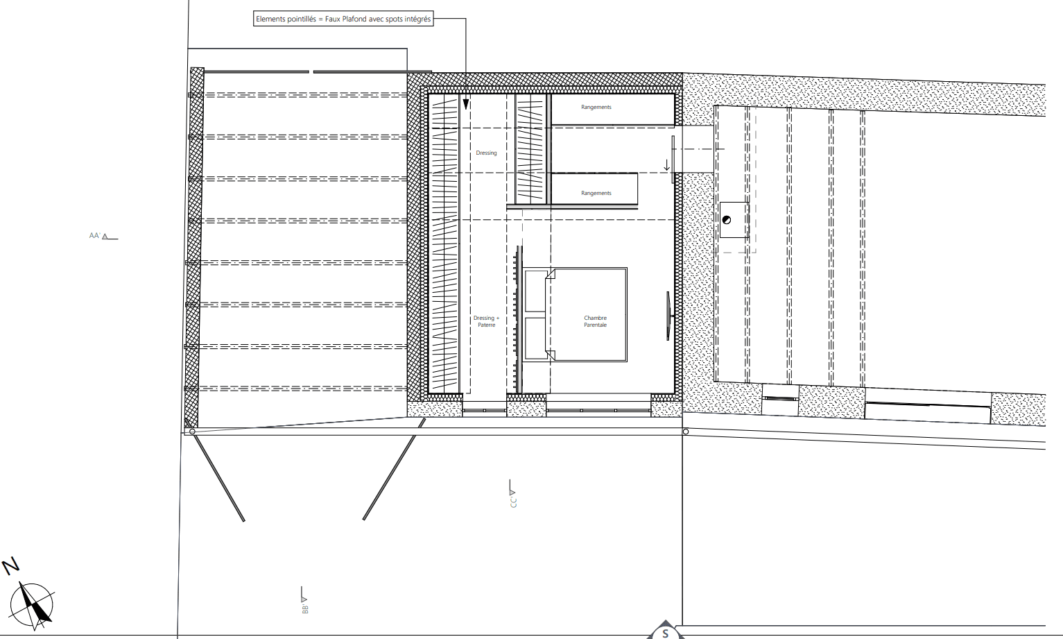
Transformation d’un garage en suite parentale et création d’un nouveau garage accolé à l’ancien

Photos / Rendus

Retour en haut